Casa Bonica

Privacidad, confort y momentos para compartir

Casa Bonica
Casa Bonica
Casa Bonica
Casa Bonica
1/56

10

9 opiniones

Casa Bonica

"Privacidad, confort y momentos para compartir"

Casa Bonita es una acogedora casa de nueva construcción situada en una tranquila urbanización en las afueras de Sils, en la comarca de la Selva. Ideal para familias o grupos pequeños que buscan desconectar rodeados de calma, privacidad y todas las comodidades, muy cerca de todos los servicios.

La casa, de una sola planta, ha sido decorada con esmero para ofrecer un ambiente cálido y confortable que invita al descanso y la desconexión.

Entrando en la casa por la puerta principal, te recibirá un pequeño gimnasio equipado con máquina de remo, elíptica, bicicleta estática y zona de lavadora. A continuación, encontramos un amplio salón-comedor presidido por una chimenea eléctrica con mando a distancia, que permite ajustar la temperatura, la imagen y los efectos de sonido para crear el ambiente perfecto. Desde esta estancia se accede al jardín y a la cocina, totalmente equipada.

La zona de noche está separada por un pasillo que conduce a las 4 habitaciones: tres dobles que comparten un baño completo y una habitación doble con baño privado.

El exterior es un verdadero oasis de intimidad y confort. El jardín, que rodea toda la casa, permite que la luz natural entre en todos los espacios. En el jardín encontrarás una mesa de ping-pong, la zona de barbacoa, el comedor exterior para compartir comidas al aire libre, un espacio chill-out y la piscina. En el nivel superior del jardín, un banco te invita a relajarte contemplando las vistas al Montseny.

El garaje se ha transformado en una sala de juegos con billar y futbolín, ideal para disfrutar de un buen rato en compañía. 

Casa Bonica, desde 2025 con Naturaki.
Nº de registro en Turismo:
HUTG-078059
Nº de registro de alquiler de corta duración:
ESFCTU00001701800071688300000000000000HUTG-078059-630
Leer más

10

A las familias les encanta esta casa, ¡la valoran con un 10!

Casa Bonica, ideal para familias

Características básicas

guests

8 huéspedes

Se contabilizan a partir de 2 años.
rooms

4 habitaciones

La casa tiene una superficie de 180 m2
bathrooms

2 baños

Todos disponen de ducha o bañera.
dogs

Perros bienvenidos

Suplemento de 40€ por perro y estancia. Máximo 2.
pool

Piscina exterior de 8 x 3m

Piscina de agua salada de 8x3m y una profundidad de 1 a 2m.
Disponible todo el año, aunque no está climatizada.
exteriors

Disfruta de los exteriores

Gran jardín de 820 m2 y barbacoa.
games

Zona de juegos

Billar, futbolín y mesa de ping pong.
crib

Para los más pequeños

Disponemos de 1 cuna y de 1 trona que podemos preparar gratuitamente.

Recorre Casa Bonica

Casa Bonica
Casa Bonica
Casa Bonica
Casa Bonica
Casa Bonica
Casa Bonica

53

fotos más...

Distribución de habitaciones y camas

Planta Baja
Cama doble (2 plazas)Baño privado

Habitación 1

2 plazas (baño privado)

Planta Baja
Cama doble (2 plazas)

Habitación 2

2 plazas

Planta Baja
Cama doble (2 plazas)

Habitación 3

2 plazas

Planta Baja
Cama individual (1 plaza)Cama individual (1 plaza)

Habitación 4

2 plazas

Equipamientos y servicios

Exteriores pensados para disfrutarlos: Piscina, jardín de 820 m2, casa totalmente vallada, barbacoa de gas , 6 tumbonas.

Todo el menaje del hogar que necesitas: Sábanas, mantas, toallas , toalla de manos, vajilla y cubertería , copas , vasos, secador de pelo, jabón de manos, papel wc , papel de cocina , kit de limpieza , tendedero para la ropa .

Juegos y entretenimientos para una estancia más divertida: Billar, futbolín, mesa de ping pong .

Equipo deportivo para mantenerte activo durante la estancia: Bicicleta estática, elíptica, máquina de remo.

También pensada para los más pequeños: 1 cuna (reserva previa) , 1 trona, alzador de baño.

Confort y buena temperatura durante todo el año: Calefacción, aire acondicionado (toda la casa).

Tecnología por si quieres seguir conectado: WIFI gratuito, TV pantalla plana , smart TV .

Cocina totalmente equipada: 1 nevera, 1 congelador, lavavajillas y pastillas , horno, microondas, cafetera Italiana, cafetera de filtro, hervidor-"Kettle", tostadora, exprimidor, batidora-minipimer, cocina de inducción, lavadora , plancha y tabla de planchar.

Ven también con tu mejor amigo: Acepta perros .

Bikefriendly, pensamos en tu bici: Aparcamiento para 8 bicis, manguera .

Otras características que te pueden interesar: Aparcamiento en la finca para 2 coches, acceso a la casa asfaltado.

Gestión flexible de la estancia: Permite check-in online , permite Night check-out , esta casa no permite entrar antes de las 17h .

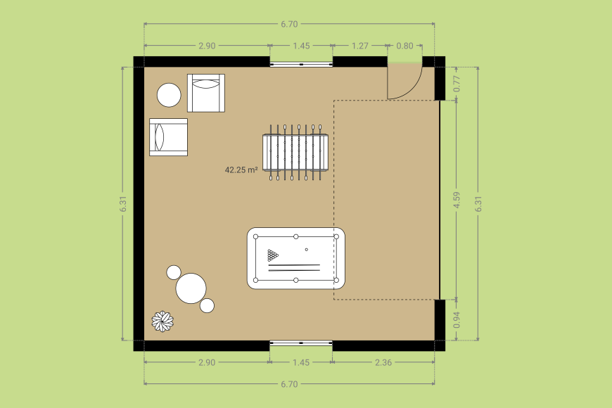
Planos y distribución

Casa Bonica - Planta baja

Planta baja

Casa Bonica - Planta baja sala de juegos

Planta baja sala de juegos

Casa Bonica - Jardín

Jardín

Calendario

Marzo 2026

lumamijuvisado
-
-
-
-
-
-
1
2
3
4
5
6
7
8
9
10
11
12
13
14
15
16
17
18
19
20
21
22
23
24
25
26
27
28
29
30
31

Abril 2026

lumamijuvisado
-
-
1
2
3
4
5
6
7
8
9
10
11
12
13
14
15
16
17
18
19
20
21
22
23
24
25
26
27
28
29
30

Mayo 2026

lumamijuvisado
-
-
-
-
1
2
3
4
5
6
7
8
9
10
11
12
13
14
15
16
17
18
19
20
21
22
23
24
25
26
27
28
29
30
31

Junio 2026

lumamijuvisado
1
2
3
4
5
6
7
8
9
10
11
12
13
14
15
16
17
18
19
20
21
22
23
24
25
26
27
28
29
30

Julio 2026

lumamijuvisado
-
-
1
2
3
4
5
6
7
8
9
10
11
12
13
14
15
16
17
18
19
20
21
22
23
24
25
26
27
28
29
30
31

Agosto 2026

lumamijuvisado
-
-
-
-
-
1
2
3
4
5
6
7
8
9
10
11
12
13
14
15
16
17
18
19
20
21
22
23
24
25
26
27
28
29
30
31

Septiembre 2026

lumamijuvisado
-
1
2
3
4
5
6
7
8
9
10
11
12
13
14
15
16
17
18
19
20
21
22
23
24
25
26
27
28
29
30

Octubre 2026

lumamijuvisado
-
-
-
1
2
3
4
5
6
7
8
9
10
11
12
13
14
15
16
17
18
19
20
21
22
23
24
25
26
27
28
29
30
31

Noviembre 2026

lumamijuvisado
-
-
-
-
-
-
1
2
3
4
5
6
7
8
9
10
11
12
13
14
15
16
17
18
19
20
21
22
23
24
25
26
27
28
29
30

Diciembre 2026

lumamijuvisado
-
1
2
3
4
5
6
7
8
9
10
11
12
13
14
15
16
17
18
19
20
21
22
23
24
25
26
27
28
29
30
31

Enero 2027

lumamijuvisado
-
-
-
-
1
2
3
4
5
6
7
8
9
10
11
12
13
14
15
16
17
18
19
20
21
22
23
24
25
26
27
28
29
30
31

Febrero 2027

lumamijuvisado
1
2
3
4
5
6
7
8
9
10
11
12
13
14
15
16
17
18
19
20
21
22
23
24
25
26
27
28

Marzo 2027

lumamijuvisado
1
2
3
4
5
6
7
8
9
10
11
12
13
14
15
16
17
18
19
20
21
22
23
24
25
26
27
28
29
30
31

Casa Bonica se suele reservar con 4 meses de anticipación. ¡No esperes hasta el último momento!

Precios

Precios

Fin de semana

o 2 primeros días

Día adicional

Semana completa

7 noches
Baja
600
190
1540
Baja Media
715
220
1795
Media
830
245
2050
Alta
990
280
2390
Extra
-
-
2880
Listado detallado de precios

Consulta fácilmente el precio de tu estancia

Utiliza el formulario de disponibilidad y automáticamente te comprobará la disponibilidad y calculará el precio.
Si lo deseas puedes realizar la reserva y te quedará confirmada al instante. Si está ocupado te propondremos alojamientos alternativos similares o podrás apuntarte a la lista de espera por si hay una anulación para las fechas que te interesan.
10

Valoración general

Comentarios 100% reales. Escritos por personas como tú.

10
10
10
9.8
10

¿Qué opinan los huéspedes de Casa Bonica?

Resumiendo las últimas 9 opiniones reales, este alojamiento destaca por su limpieza impecable, excelente equipamiento y un entorno acogedor que invita a la comodidad. Los huéspedes aprecian la atención cálida y cercana de los propietarios, siempre dispuestos a hacer la estancia más agradable. La chimenea eléctrica y las áreas de recreo, como la barbacoa y la sala polivalente, son muy valoradas, mientras que el jardín y la piscina prometen momentos de disfrute en temporada.Resumen generado con IA

Opiniones reales9 comentarios

Buscar o filtrar...
10
06/03/2026

VanesaCon amigos - Spain

¡Fantástica casa!

La casa es muy amplia, acogedora y con todo lo que se puede necesitar para una buena estancia. Dolors es muy atenta y dispuesta a ayudarnos en todo. Repetiremos seguro en verano para poder disfrutar más del exterior. ¡Tiene una piscina chulísima!.
10
04/03/2026

NelyCon amigos - Spain

Fantástica la casa

Todo fantástico. La acogida por parte de los propietarios de diez, son súper amables. La casa, de una sola planta, impecable en cuanto a los servicios, no falta de nada, calefacción en todas las estancias. Chimenea eléctrica que tiene su punto. Limpieza impecable... en fin, ni una queja. Éramos seis amigos y lo pasamos muy bien a pesar de que no dejó de llover y no pudimos salir mucho a su maravilloso jardín. Muy buen sabor de boca.
10
27/02/2026

Anónimo

Sin comentario

10
20/02/2026

LauraCon amigos - Spain

Sin comentario

El cliente ha valorado que la limpieza es excelente, el trato recibido es excelente, el mantenimiento es excelente, la relación calidad-precio es excelente y la ubicación es excelente.
5 opiniones más

Situación

Una acogedora casa de nueva construcción situada en la tranquila urbanización King Park en las afueras de Sils, en la comarca de la Selva.
Avinguda Catalunya, 53 - 17410 Sils (La Selva)

10

Ubicación Excelente, ¡nuestros huéspedes la valoran con un 10!

Casa Bonica, ubicación ideal

Localidades cercanas

Girona

La Catedral, la Rambla, el Puente de Piedra, el barrio viejo, las casas del Onyar
25 min23 km

Platja d'Aro

Paseo con zona comercial, bares de copas, la playa
26 min32 km

S'Agaro

Playa, restaurantes, camino de ronda...
26 min31 km

Sant Feliu de Guíxols

El Monasterio, el mercado, la Via Ferrata, la playa
29 min30 km

Banyoles

El lago natural, museo Darder, Barrio viejo, la plaza mayor, museo Arqueológico
32 min44 km

Playas más cercanas

Playa de Fenals

24 min17 km

Playa de S'Abanell

24 min21 km

Cala Sa Boadella

26 min19 km

Restaurantes cercanos

La Granota

3 min2 km

El Portal

4 min2.6 km

Cafè de la Selis

6 min3.1 km

Supermercados

Mercadona

Vidreres
3 min2.4 km

Spar

Sils
5 min3.7 km

Bon Preu

Maçanet de la Selva
6 min5.3 km

Consum

Sils
7 min4.5 km

Otros servicios

Panadería

Panadería Can Campanyó
4 min3.2 km

Tienda básica

Can Batallé
6 min2.8 km

Carnicería

Batllosera
7 min3.3 km

Pescadería

Consum
7 min4.5 km

Farmacia

Angie Casanovas
4 min2.5 km

Hospital más cercano

Hospital Doctor Josep Trueta
23 min27 km
Consulta las indicaciones exactas para llegar a cada sitio utilizando el icono

Dudas frecuentes de nuestros clientes

¿Cuál es la capacidad máxima de Casa Bonica y cómo se calcula?

La capacidad máxima de Casa Bonica es de 8 personas. Para vuestra comodidad y en cumplimiento de la normativa, no se puede superar en ningún caso la capacidad máxima de la casa.
En esta casa, los niños a partir de 2 años se contabilizan a la hora de calcular la capacidad máxima del alojamiento. Los bebés no se contabilizan en Casa Bonica.

¿Qué tipo de piscina tiene la casa?

Casa Bonica dispone de una piscina de agua salada de 8x3m y una profundidad de 1 a 2m.

¿Cuándo abren las piscinas?

Su piscina exterior está disponible todo el año, aunque no está climatizada.

¿Qué tipo de cafetera hay en Casa Bonica?

La casa dispone de cafetera tipo Cafetera de filtro, Cafetera Italiana.
En el apartado de equipamientos y servicios de la web, te detallamos esta información junto con todos los utensilios y electrodomésticos que podrás encontrar en la casa.

¿Hay toallas en Casa Bonica?

Sí, hay una toalla grande y una toalla pequeña por persona. En el apartado de equipamientos y servicios de la web, te detallamos esta información junto con todos los utensilios y electrodomésticos que podrás encontrar en la casa.

¿Hay sábanas en Casa Bonica?

Sí, encontrarás la casa preparada con las sábanas incluidas. En el apartado de equipamientos y servicios de la web, te detallamos esta información junto con todos los utensilios y electrodomésticos que podrás encontrar en la casa.

¿Hay cuna en Casa Bonica?

Sí, la casa dispone de 1 cuna de cunas bajo petición. Recuerda que la ropa de cama de la cuna no está incluida y tendrás que llevarla tú. Los tamaños de la cuna son 60x120cm. En el apartado de equipamientos y servicios de la web, te detallamos esta información junto con todos los utensilios y electrodomésticos que podrás encontrar en la casa.

¿Hay trona en Casa Bonica?

Sí, la casa dispone de 1 tronas siempre a tu disposición sin reserva previa. En el apartado de equipamientos y servicios de la web, te detallamos esta información junto con todos los utensilios y electrodomésticos que podrás encontrar en la casa.

¿Hay paellero en la casa?

No, en esta casa no hay paellero.

¿Se aceptan perros en Casa Bonica?

Sí, se aceptan perros con un coste de 40€ por perro con un máximo de 2 perros.

No incluir el perro en la reserva puede conllevar una retención de la fianza de 40€ por perro.

¿Hay secador de pelo en Casa Bonica?

Sí, hay secador de pelo en la casa. Los secadores de pelo es un servicio común y los hay en todas las casas de nuestra web. En el apartado de equipamientos y servicios de la web, te detallamos esta información junto con todos los utensilios y electrodomésticos que podrás encontrar en la casa.

¿Hay aire acondicionado en Casa Bonica?

Sí, la casa está equipada con aire acondicionado en todas las estancias.

¿Tengo que llevar carbón?

Casa Bonica tiene una barbacoa de gas y ya incluye la bombona de butano, por lo que no necesitarás carbón para la barbacoa.

¿Hay leña en la casa?

Casa Bonica no tiene chimenea, por lo tanto, no encontrarás leña en la casa.

¿Qué incluye el kit de limpieza básico que encontraré en la casa?

En todas nuestras casas el día de tu llegada encontrarás un kit de limpieza básico. Este kit de limpieza incluye: estropajo, trapos de cocina, jabón para lavar los platos y bolsas para la basura.

En el apartado de equipamientos y servicios de la web, te detallamos esta información junto con todos los utensilios y electrodomésticos que podrás encontrar en la casa.

¿Qué menaje o utensilios básicos hay en la casa?

En la casa encontrarás vajilla y cubertería completa por el número de personas máximo que admite la casa, copas de vino y de cava, vasos, al menos 2 rollos de papel higiénico en cada aseo, 1 rollo de papel de cocina, el kit de limpieza básico y un tendedero para la ropa (ten en cuenta que no se incluyen las pinzas para el tendedero).

En el apartado de equipamientos y servicios de la web, te detallamos esta información junto con todos los utensilios y electrodomésticos que podrás encontrar en la casa.

¿Hay lavavajillas en la casa?

La casa está equipada con lavavajillas. El kit de limpieza básico que encontrarás en la casa también incluye unas cuantas pastillas para el lavavajillas así como el estropajo y una botella de jabón para lavar los platos manualmente.

En el apartado de equipamientos y servicios de la web, te detallamos esta información junto con todos los utensilios y electrodomésticos que podrás encontrar en la casa.

¿Hay lavadora en la casa?

Todas nuestras casas están equipadas con lavadoras. Recuerda que el detergente para la lavadora no está incluido y tendrás que llevarlo tú.

En el apartado de equipamientos y servicios de la web, te detallamos esta información junto con todos los utensilios y electrodomésticos que podrás encontrar en la casa.

¿Hay juegos en las casas?

La mayoría de nuestras casas están equipadas con juegos de mesa así como con instalaciones para jugar al fútbol, voleibol, baloncesto, ping-pong o petanca.
Por precaución, te recomendamos llevar tus pelotas y material para jugar para asegurarse de que los juegos están completos y que estén en buen estado.

¿A qué hora podemos entrar y salir de Casa Bonica?

La hora de entrada habitual es a las 17h y la hora de salida habitual a las 11h. Esta casa no permite entrar antes de las 17h. Los domingos y los días festivos, podrás disfrutar de la casa hasta las 17h.

Además, si el día de tu salida de Casa Bonica es un domingo o un día festivo y quieres salir de la casa más tarde de las 17h tienes la opción de contratar el night check-out que te permitirá disfrutar de la casa hasta las 21h. Puedes contratar el night check-out en el momento de realizar la reserva, a través de la confirmación de tu reserva o desde la extranet de clientes.

¿Cuándo y cómo hacer los pagos de la reserva en Casa Bonica?

Para poder confirmar la reserva será necesario que hagas una paga y señal del 25% del total de la reserva con tarjeta, transferencia bancaria o utilizando un bono o cheque regalo.

Casa Bonica ofrece la opción de realizar el check-in online. El resto de los importes pendientes como la tasa turística, la fianza y el resto del alquiler podrás pagarlos de una forma muy fácil y cómoda. Si quieres ir directamente a la casa sin necesidad de pasar por nuestras oficinas, puedes realizar el check-in online o entrada a distancia. Unos días antes del día de entrada (recomendable entre 3-4 días antes), podrás acceder al enlace del correo de confirmación de reserva para realizar el check-in online y de esta manera, rellenar los datos personales del titular de la reserva, firmar el contrato de alquiler de la casa, adjuntar una foto del documento de identidad del titular de la reserva y realizar el pago del importe pendiente de la reserva con la tarjeta de crédito o débito (alquiler tasa turística fianza).

¿Dónde y cómo recojo las llaves de la casa?

Una vez finalizado el check-in online, validaremos la documentación y el pago y te enviaremos el correo de "confirmación de entrada a distancia" con 3 documentos adjuntados: la copia del contrato de alquiler, las normas de la casa y, finalmente y lo más importante, la "Hoja de estancia" con el teléfono de contacto para resolver cualquier incidencia durante tu estancia, la información práctica del funcionamiento de la casa y el código y las instrucciones para poder recoger las llaves de dentro del buzón de la misma casa.

¿Cómo puedo contactar con los propietarios de la casa?

Si tienes cualquier duda sobre Casa Bonica puedes preguntarnos a nosotros y procuraremos darte respuesta lo antes posible.

Una vez finalizado el check-in online recibirás el teléfono de contacto de los propietarios, mientras, si tienes cualquier duda puedes preguntarnos a nosotros a través del formulario web o por correo electrónico.

¿Cómo puedo solicitar la factura de la estancia?

Podrás solicitar la factura de tu estancia en Casa Bonica durante el proceso del check-in online donde tendrás la opción de introducir los datos que quieres que aparezcan en la factura y de esta forma, cuando finalice la estancia , los propietarios recibirán un aviso automático para preparar la factura y te la harán llegar.

Ten en cuenta que este alojamiento legalmente sólo puede emitir facturas a particulares. Casa Bonica no puede emitir facturas a empresas.

¿Con quién puedo contactar si tengo cualquier incidencia durante la estancia?

Para resolver cualquier incidencia durante tu estancia deberás contactar directamente con los propietarios de la casa, ya que ellos conocen mejor la casa y te podrán dar una respuesta mucho más rápida y eficaz. Encontrarás su teléfono en el correo de confirmación de entrada a distancia que recibirás al finalizar el check-in online.

¿La información de la web está actualizada?

En Naturaki trabajamos y revisamos constantemente la información de la casa que aparece en la página web para garantizar la máxima transparencia así como para poder ofrecer la información actualizada de todas nuestras casas. Aun así, alguno de los equipamientos y servicios de la casa se pueden ver modificados o retirados en el caso de daño, reparación o sustitución. Procuramos siempre resolverlo tan pronto como sea posible para que no se vea afectada la estancia de nuestros huéspedes.

¿Tu duda no ha quedado resuelta?

Si tienes cualquier duda sobre tu reserva en Casa Bonica, puedes preguntarnos a nosotros y procuraremos darte respuesta lo antes posible.
Formulario de reserva
Casa Bonica

Formulario de reserva

Casa Bonica

Formulario de reserva
Selecciona fechas...

2 adultos
Consultar disponibilidad

Fotografías

Casa Bonica

Calendario de disponibilidad

Casa Bonica

Listado de precios

Casa Bonica

Opiniones

Casa Bonica

Destino

Fechas

lumamijuvisado

Marzo de 2026

-
-
-
-
-
-
1
2
3
4
5
6
7
8
9
10
11
12
13
14
15
16
17
18
19
20
21
22
23
24
25
26
27
28
29
30
31

Abril de 2026

-
-
1
2
3
4
5
6
7
8
9
10
11
12
13
14
15
16
17
18
19
20
21
22
23
24
25
26
27
28
29
30

Mayo de 2026

-
-
-
-
1
2
3
4
5
6
7
8
9
10
11
12
13
14
15
16
17
18
19
20
21
22
23
24
25
26
27
28
29
30
31

Junio de 2026

1
2
3
4
5
6
7
8
9
10
11
12
13
14
15
16
17
18
19
20
21
22
23
24
25
26
27
28
29
30

Julio de 2026

-
-
1
2
3
4
5
6
7
8
9
10
11
12
13
14
15
16
17
18
19
20
21
22
23
24
25
26
27
28
29
30
31

Agosto de 2026

-
-
-
-
-
1
2
3
4
5
6
7
8
9
10
11
12
13
14
15
16
17
18
19
20
21
22
23
24
25
26
27
28
29
30
31

Septiembre de 2026

-
1
2
3
4
5
6
7
8
9
10
11
12
13
14
15
16
17
18
19
20
21
22
23
24
25
26
27
28
29
30

Octubre de 2026

-
-
-
1
2
3
4
5
6
7
8
9
10
11
12
13
14
15
16
17
18
19
20
21
22
23
24
25
26
27
28
29
30
31

Noviembre de 2026

-
-
-
-
-
-
1
2
3
4
5
6
7
8
9
10
11
12
13
14
15
16
17
18
19
20
21
22
23
24
25
26
27
28
29
30

Diciembre de 2026

-
1
2
3
4
5
6
7
8
9
10
11
12
13
14
15
16
17
18
19
20
21
22
23
24
25
26
27
28
29
30
31

Enero de 2027

-
-
-
-
1
2
3
4
5
6
7
8
9
10
11
12
13
14
15
16
17
18
19
20
21
22
23
24
25
26
27
28
29
30
31

Febrero de 2027

1
2
3
4
5
6
7
8
9
10
11
12
13
14
15
16
17
18
19
20
21
22
23
24
25
26
27
28

Marzo de 2027

1
2
3
4
5
6
7
8
9
10
11
12
13
14
15
16
17
18
19
20
21
22
23
24
25
26
27
28
29
30
31

En Naturaki no reservamos con más de 12 meses de antelación.

Huéspedes

Adultos

17 años o más

Niños

De 2 a 16 años
0
1
2
3
4
5
6
7
8
9
10
11
12
13
14
15
16
17
18
19
20
21
22
23
24
25
26
27
28
29
30
31

Bebés

Menos de 2 años
0
1
2
3
4
Programador web girona freelance